238 mq
3
3
Garage/Posto Auto
Giardino privato
Centralizzato - Contacalorie

Descrizione

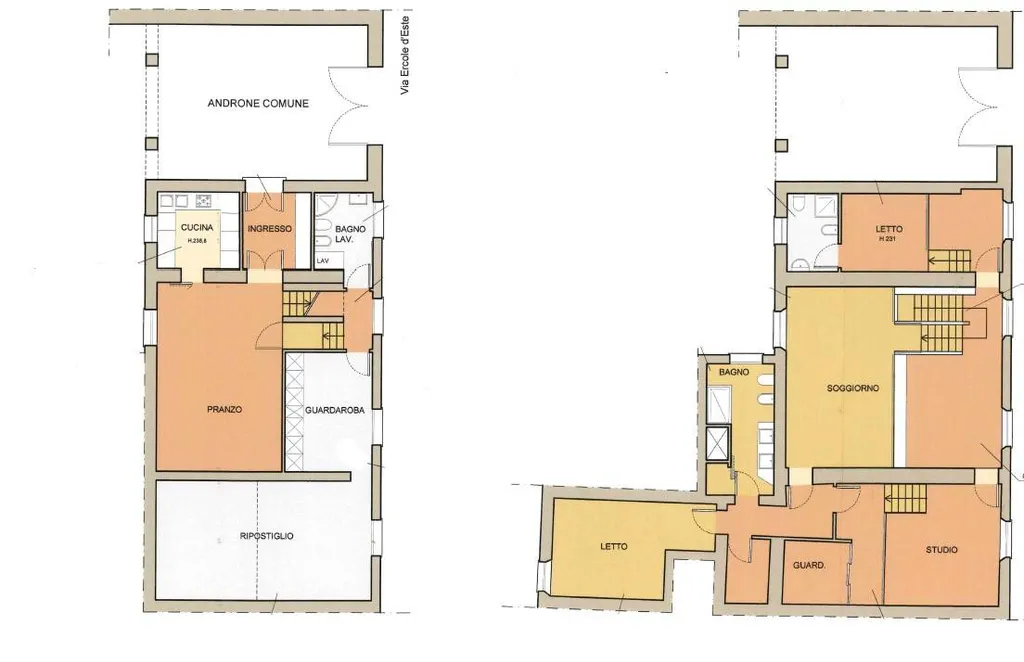
Rif. 4016 - Prestigioso appartamento in vendita a Ferrara, Corso Ercole I d’Este. In palazzo storico del 1500 vendiamo una splendida unità immobiliare progettata e ristrutturata dall’ Architetto Giulio Zappaterra e più precisamente così disposta: ingresso al piano terra accessibile dall’atrio del fabbricato, zona ingresso con armadiatura che filtra la parte abitativa. Ampia e luminosa zona giorno disposta su due livelli sfalsati che comprendono un pranzo di grandi dimensioni proprio di fronte alla cucina, in modo da poter comunicare liberamente tra i due ambienti. Sei comodi gradini portano alla zona salotto del piano superiore dove è possibile ricavare studio e salotto TV. Da questi ambienti partono due zone ben divise e dedicate, che sono, a destra una camera con zona letto guardaroba e bagno privato, a sinistra del soggiorno invece, un corridoio notte dove possiamo trovare altre due camere da letto di grandi dimensioni di cui una con cabina armadio interna. Bagno rifatto recentemente con doccia walk in. Ripostiglio. Possibilità di collegare alcune camere internamente se si ha la necessità di avere un ulteriore salotto o studio. Sempre dalla zona d’ingresso, troviamo una scala che con due gradini porta alla zona seminterrata e finestrata di circa 60 mq, essenziale per questa casa e per la vita di tutti giorni, e si compone di: un bagno lavanderia, una zona ripostiglio e dispensa con armadiatura a muro e una stanza multiuso-Jolly utilizzabile per poter ricevere ospiti, farsi una palestra o una sala biliardo, viste le dimensioni. Deposito cicli, stenditoi comuni di cui uno coperto e uno scoperto sopra le autorimesse. Garage di proprietà acquistabile separatamente. Possibilità di cessione di un posto auto coperto in locazione a pochi metri dall'abitazione. Riscaldamento centralizzato e contabilizzato con gestibile autonoma della geotermia. Potete contattarci senza impegno per ricevere maggiori informazioni o per prenotare un appuntamento per visionare questo Prestigioso appartamento in vendita a Ferrara, Corso Ercole I d’Este. Cod. 4016.€. Informazione e costi in ufficio.

Altre caratteristiche

Stato Immobile
In ottime condizioni
Anno costruzione
1500
Vani
6
Tipo di cucina
Abitabile
Balconi
1
Terrazze / Logge
1
Piano
Terra
Piani totali della palazzina
3
Spese condominiali
€ 400 €/mese
Tipologia Immobile
Appartamento
Categoria Immobile
Case e Appartamenti
Contatta Agenzia
Proposto da: Progetto Casa Ferrara

Quotazioni immobiliari per Corso Ercole I D'este - Ferrara